Single Family
Single Family
🌲 Original Pine Floors
🔥 Gas FP In Living Room
🌳 Spacious Yard
A true investors special. This timeless beauty is a must have as it shows tons of character. Original Pine Floors, Gas FP in living room and a spacious yard.
A true investors special. This timeless beauty is a must have as it shows tons of character. Original Pine Floors, Gas FP in living room and a spacious yard.
Date
Status
Price
2023-04-24
Coming Soon
$175,000
2023-04-28
Active
$175,000
2023-05-19
Under Contract
$175,000
2023-06-21
Sold
$150,000
Documents Source: Doorify MLS IDX Feed
Examining another house that is similar, nearby, and recently sold can help determine if the price of this home for sale is priced appropriately.


This level of clarity is how we work with every buyer and seller.
When you partner with Second Story Realty, you get a team that studies the market deeply, explains the “why” behind the numbers, and guides you with transparency at every step.
You can contact us to talk strategy, ask questions, or schedule a showing, we will help you take the next step with confidence.

Brokers make an effort to deliver accurate information, but buyers should independently verify any information on which they will rely in a transaction. The listing broker shall not be responsible for any typographical errors, misinformation, or misprints, and they shall be held totally harmless from any damages arising from reliance upon this data. This data is provided exclusively for consumers’ personal, non-commercial use.
Listings marked with an icon are provided courtesy of the Doorify MLS, Inc. of North Carolina, Internet Data Exchange Database.
Copyright 2025 Doorify MLS, Inc. of North Carolina. All rights reserved.
Closed (sold) listings may have been listed and/or sold by a real estate firm other than the firm(s) featured on this website. Closed data is not available until the sale of the property is recorded in the MLS. Home sale data is not an appraisal, CMA, competitive or comparative market analysis, or home valuation of any property.

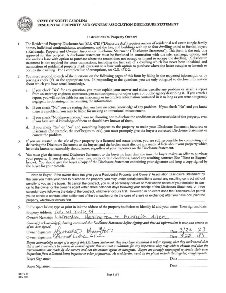
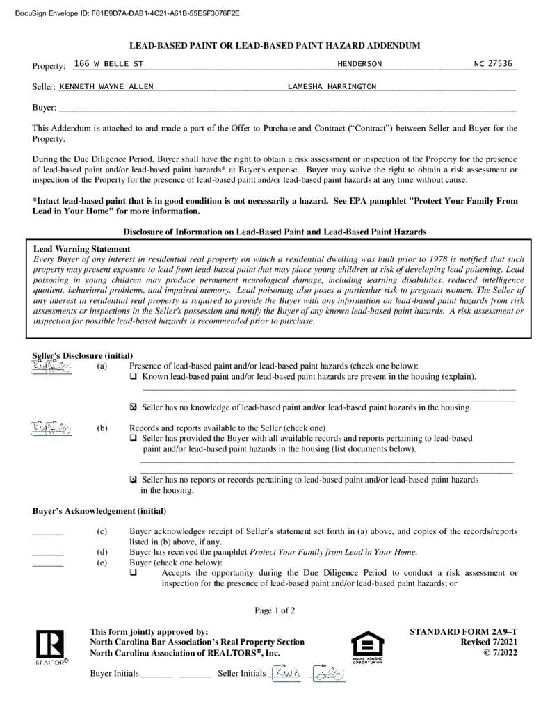
166 W Belle Street
Henderson, NC 27536
166 W Belle Street
Henderson, NC 27536
$150,000
$150,000
Old West End – Henderson Township – Vance County

166 W Belle St
Henderson
3 br
1778 sqft
$150,000
TWP Henderson
CTY Vance
SUB Old West End